2184-06-05-2022-VALENCIENNES-59-Bureaux - Bureaux AULNOY-LEZ-VALENCIENNES 360m²

Description

A louer :

En plein centre de Valenciennes et à quelques pas de la Gare

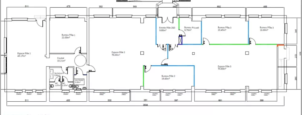
Bâtiment tertiaire de plain-pied entièrement rénové de 360m² développés sur un terrain de 1 450m².

Compteurs individuels

Chauffage électrique

Ouvrants en PVC double vitrage

Cave saine mais à réhabiliter

Rampe d'accessibilité en cours d'installation

Candidature close

Candidatures ouvertes
Candidatures à l’étude
Sélection terminée

Type de bien Bureaux
Localisation AULNOY-LEZ-VALENCIENNES
Surface 360m²
Date limite de remise des questions 01/06/2022 14:00
Date limite de remise des candidatures 23/06/2022 14:00

Questions et réponses

Accédez au plan